Navigation ausblenden Navigation einblenden
  • Startseite
  • HausA
    • Wohnung1
    • Wohnung2
    • Wohnung3
    • Wohnung4
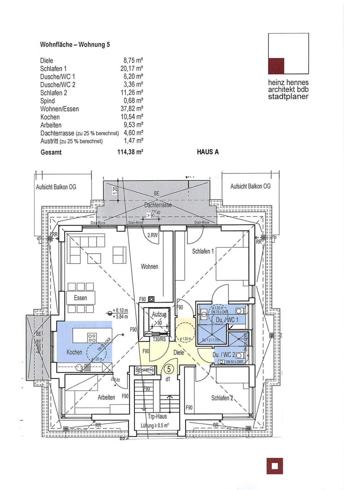
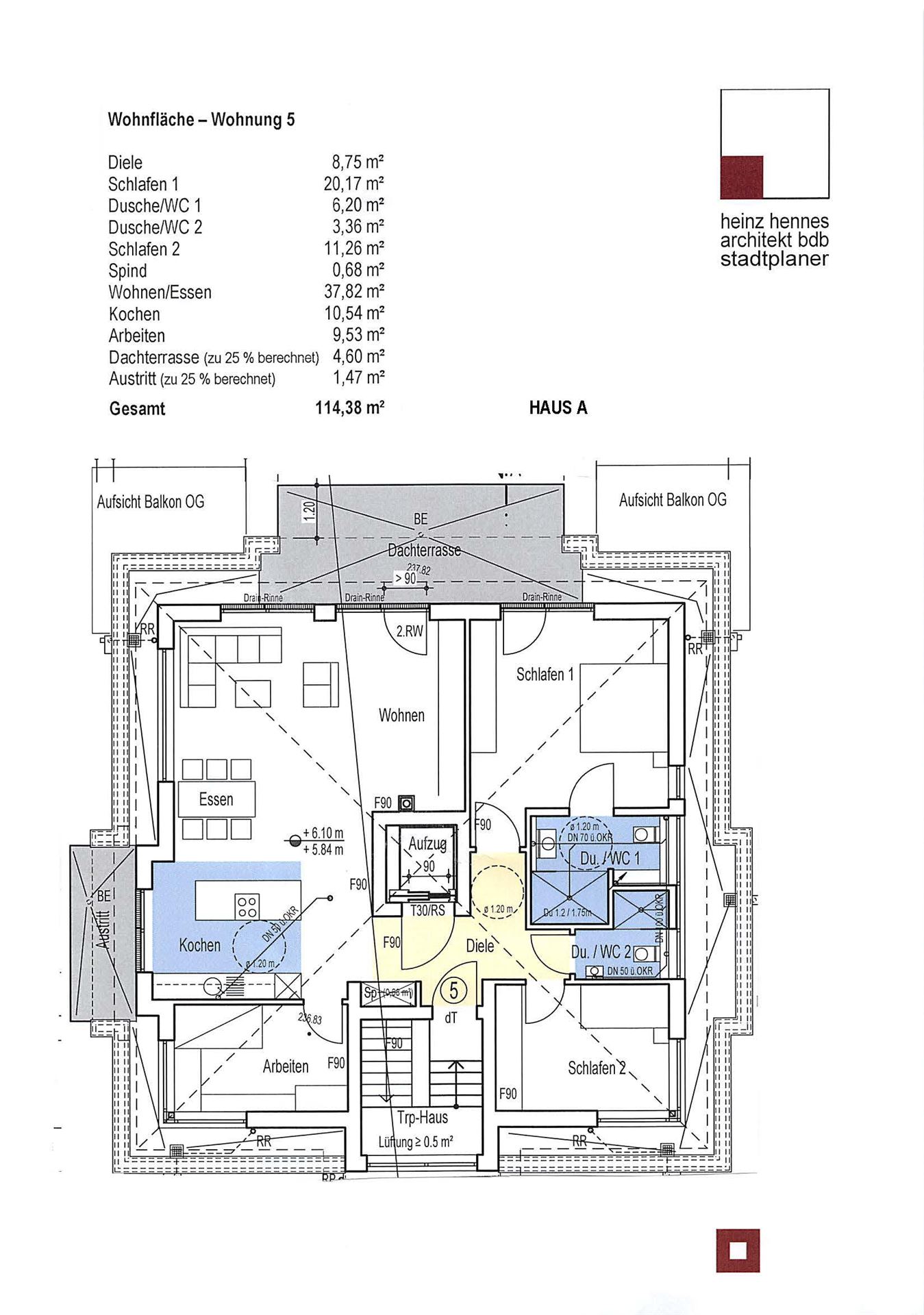
    • Wohnung5
    • Baubeschreibung
    • Außengestaltung
  • HausB
    • Wohnung1
    • Wohnung2
    • Wohnung3
    • Wohnung4
    • Wohnung5
    • Baubeschreibung
    • Außengestaltung
  • Kontakt

Wohnung5

Sie sind hier: Startseite » HausA » Wohnung5

  • Impressum & Datenschutz

Barrierefreies Wohnen im Herzen von Much ©JBM 2023